Atelier
- Proyecto de estudio; 2021
- Coord.: 41.960442, 2.821706 (Girona, España)
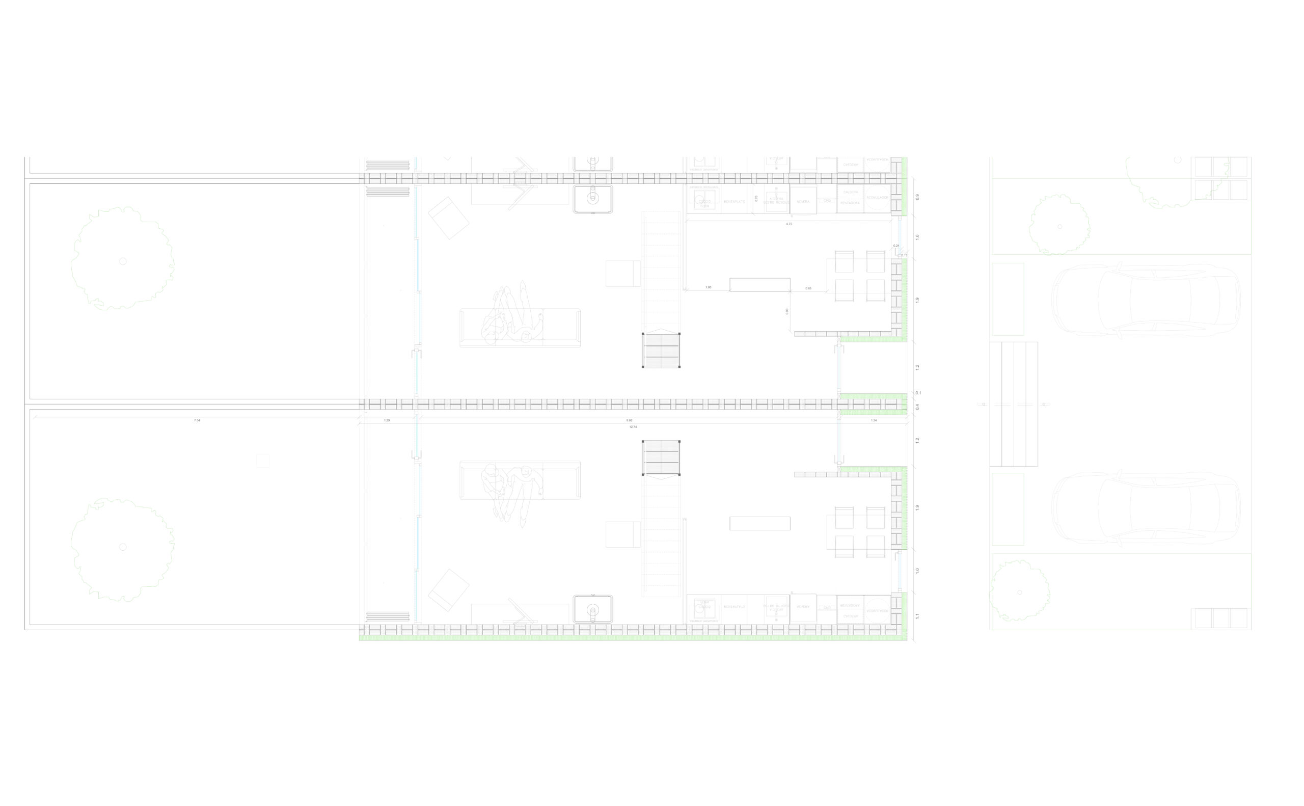
El proyecto de estudio se centra en la adaptación y aplicación de un conjunto de viviendas experimentales del arquitecto Sáenz de Oiza con la normativa constructiva española y sistemas constructivos elegidos por elección de acuerdo con el tipo de diseño.
El solar seleccionado para el complejo está situado en el sur de la ciudad de Girona, próximo a sus límites cerca de la zona universitaria y deportiva. Esta zona se caracteriza por tener una distribución urbana de casas en hilera o aisladas y sin comercio cercano, aun así la vida vecinal es muy activa. Con un análisis previo a nivel de ajuste del proyecto de Sáenz de Oiza, se observa una clara falta de sensibilidad a la hora de relacionar la calle con la casa, así como una falta de preocupación por la movilidad de los vehículos con la falta de aparcamiento, así como complejidad con la adaptación de la normativa en el interior. Aceptando ciertas limitaciones normativas entendiendo que el diseño interior no debe modificar-se a expensas de la normativa, se decide centrar esfuerzos en la relación con la calle y el terreno.
Para relacionar el conjunto con la calle y siguiendo la normativa, se retira su fachada de la vía principal. A diferencia de otros proyectos que privatizan la zona frontal con cerramientos y vallas, en este caso se opta por colectivizar el espacio con jardines y huertas para los vecinos junto con espacio para aparcamiento de vehículos o relación con el barrio. El acceso a la vivienda se eleva respecto a la calle y la zona asignada para crear sensación de privacidad y diferenciar los espacios públicos de los privados.
La casa generalmente se eleva sobre el suelo, situando el jardín trasero a un nivel más bajo, entendiendo así el clima húmedo de la zona y las abundantes lluvias en épocas del año. Este concepto de comprensión del lugar se aplica en todo momento en los que se modifican los métodos constructivos, los acabados e incluso el paisajismo.
Hablando de acabados, el proyecto utiliza materiales característicos de la zona como la cerámica para todos los pisos (tanto interiores como exteriores) y zócalos así como el uso de pigmentos naturales con la misma cerámica. Los acabados interiores se extienden hacia el exterior, comprendiendo así todo el proyecto en su totalidad. Esta extensión de los elementos permite difuminar los límites y obtener sensaciones de unidad e integración.




